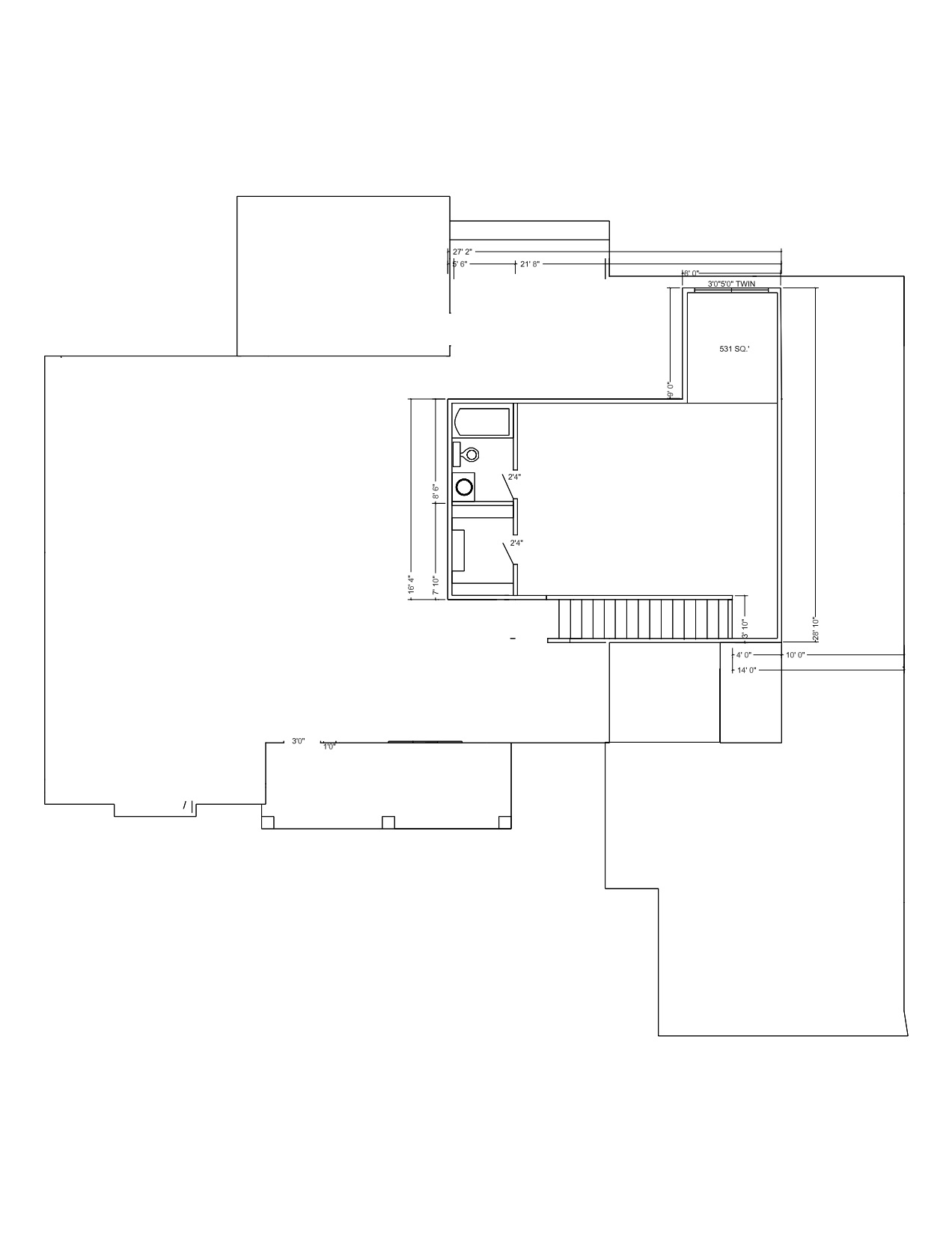
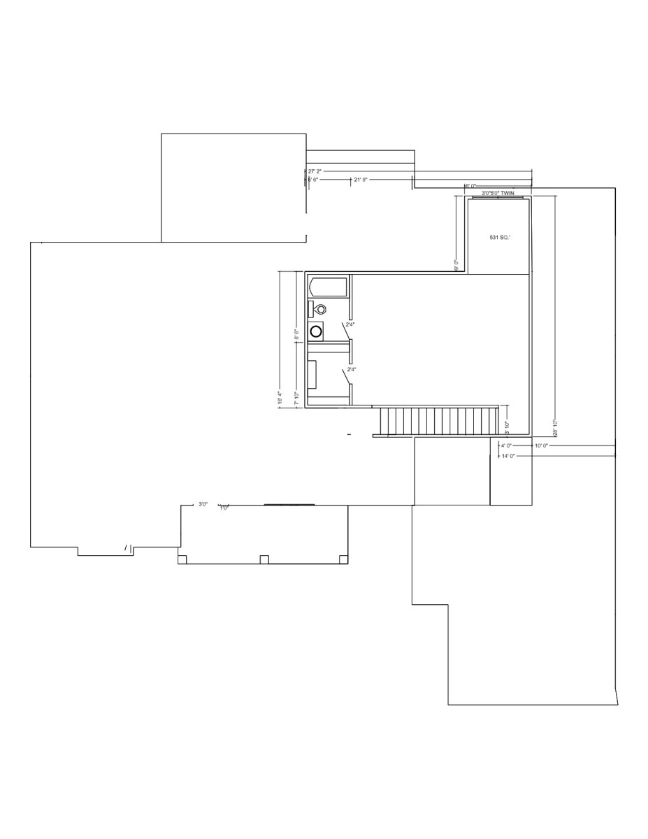
HOUSE 12 SECOND FLOOR Published April 5, 2018 at 1272 × 1647 in Houses For Sale ← Previous Next → Like Loading...