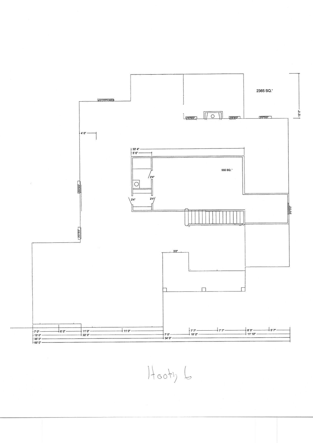
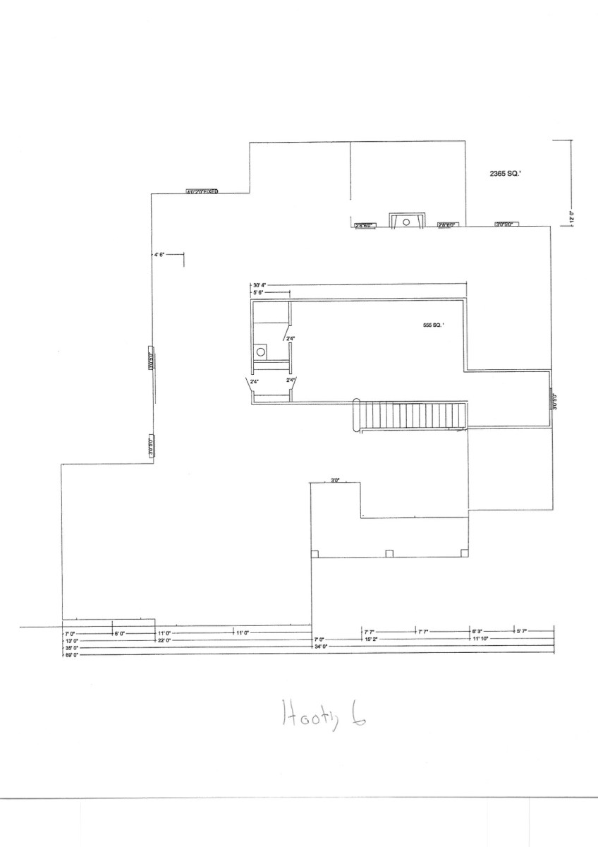
Hooty Creek 6 – Upstairs Plan Published August 13, 2019 at 1239 × 1754 in Houses For Sale ← Previous Next → Like Loading...