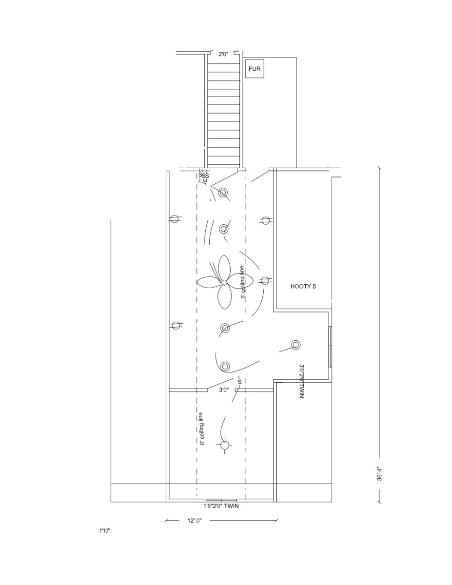
Hooty Creek #5 – Upstairs Floor Plan Published April 5, 2018 at 1272 × 1647 in Houses For Sale ← Previous Next → Like Loading...