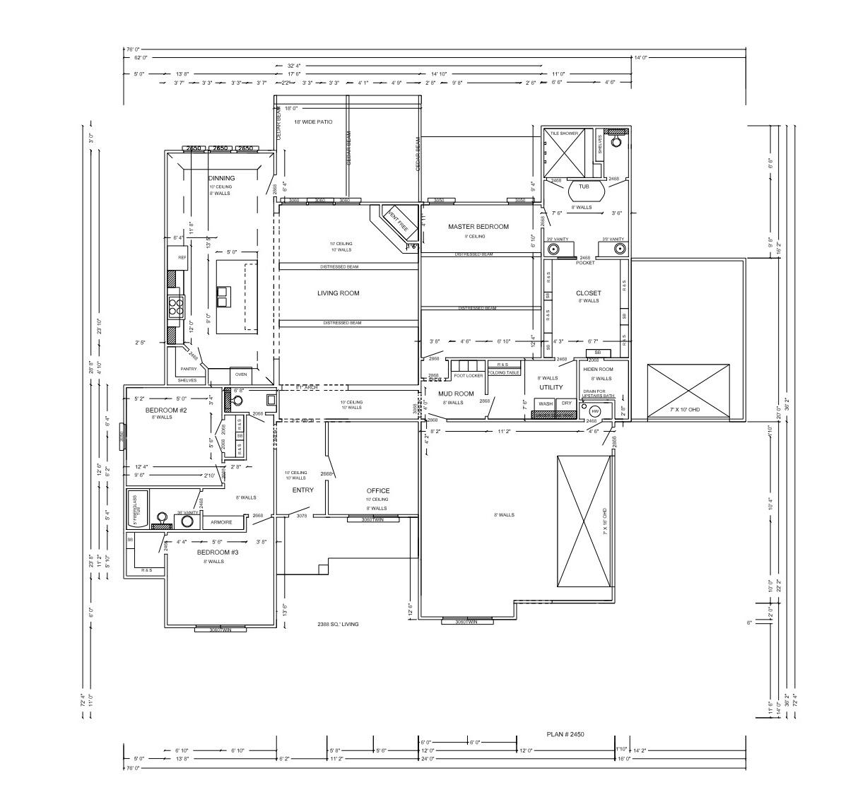
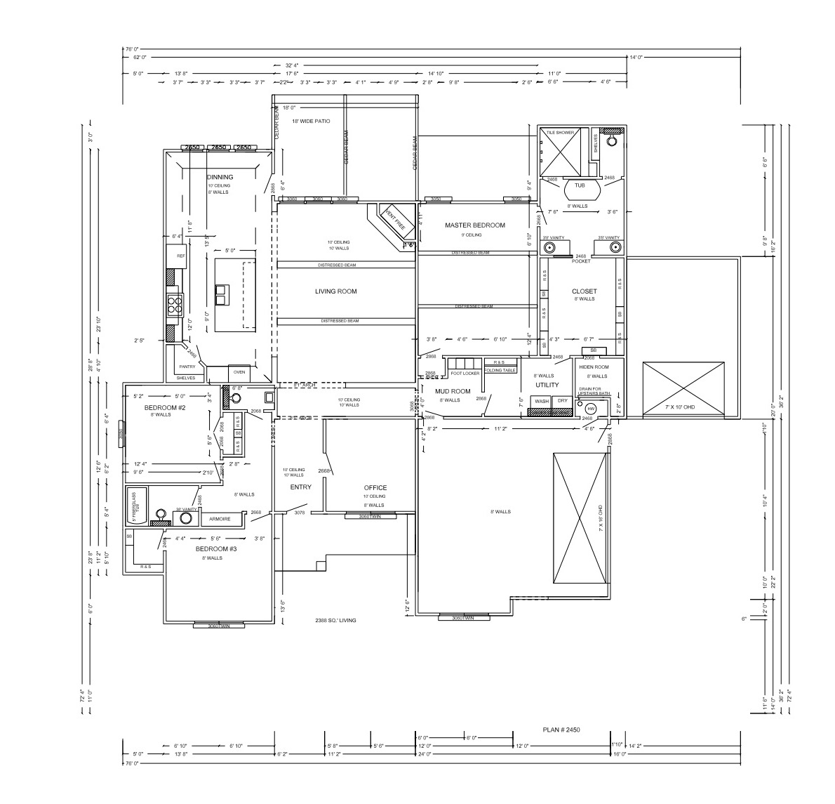
Hickory Ridge 4 – First Floor – 2020.09.24 Published September 24, 2020 at 1190 × 1145 in Houses For Sale ← Previous Next → Like Loading...