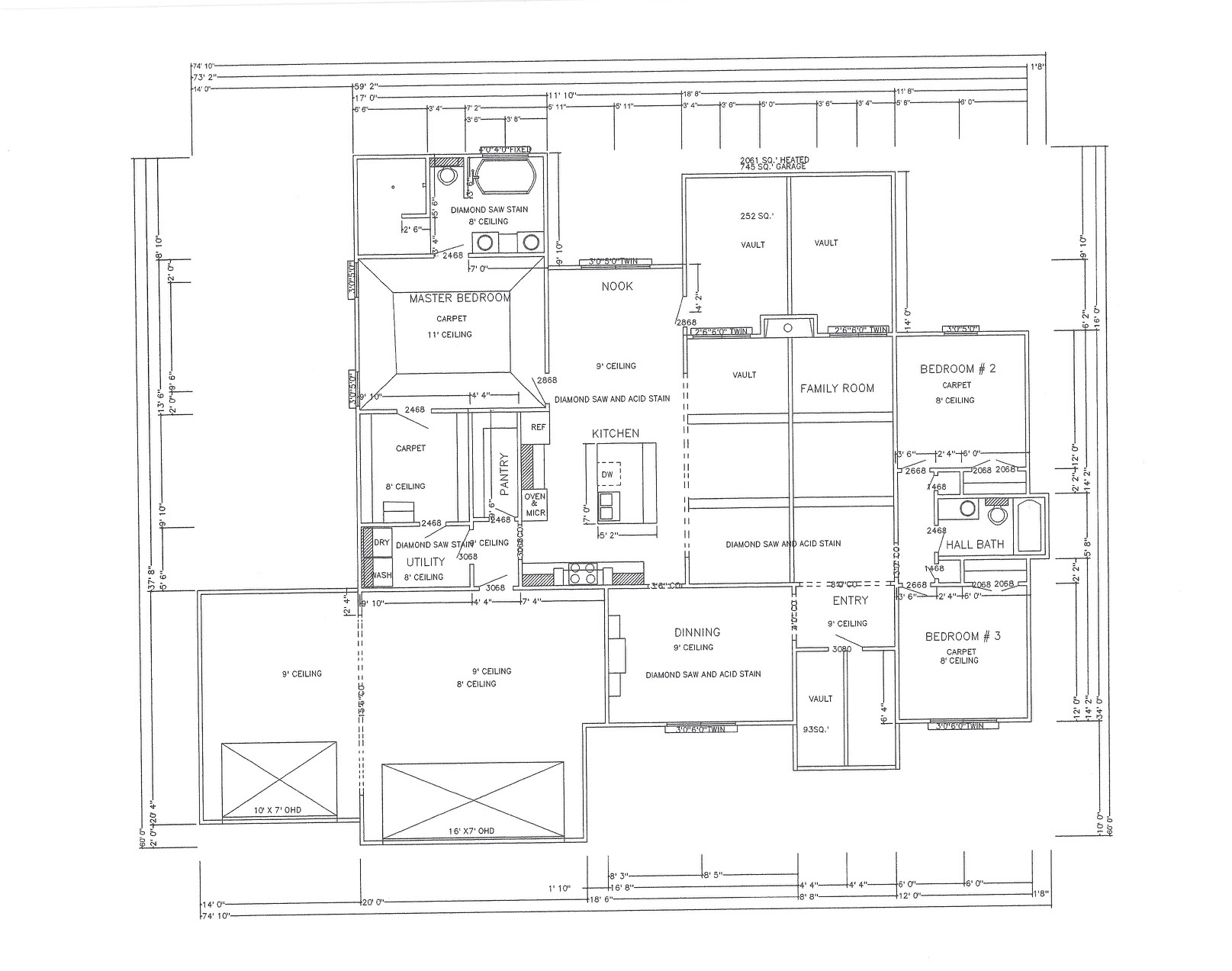
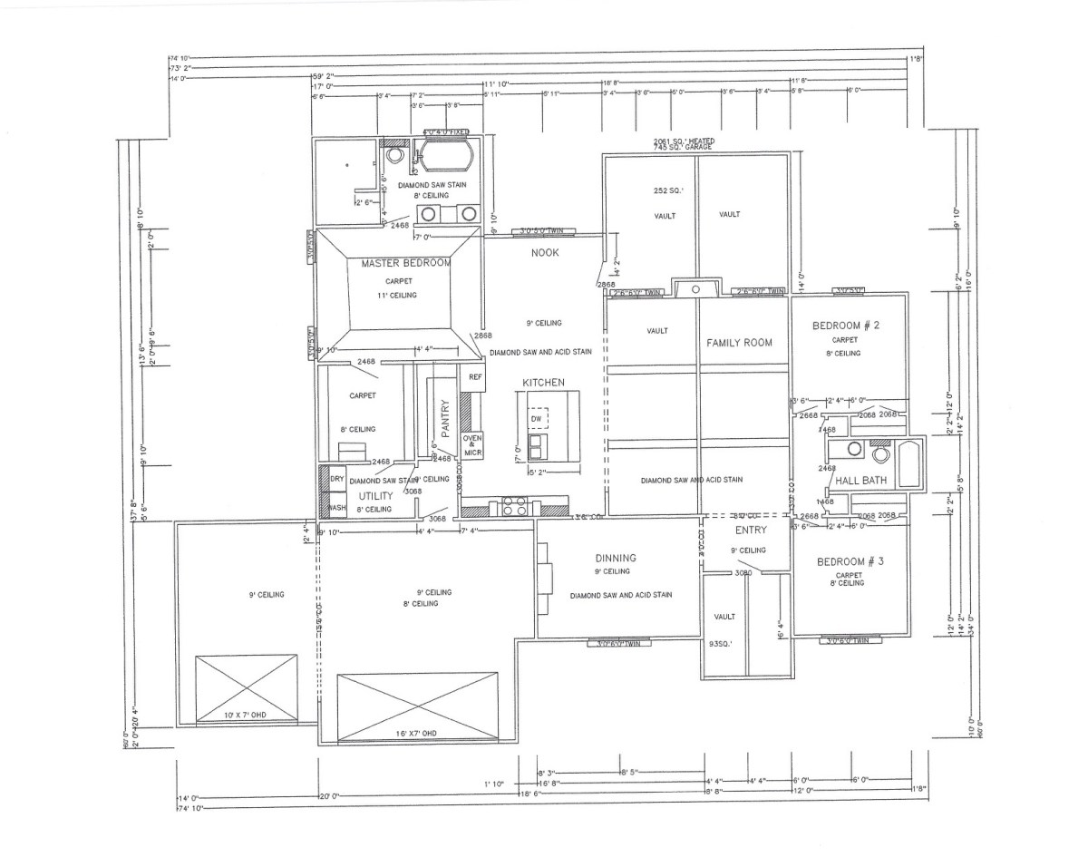
Hickory Ridge 1 – Floor Plan Published July 21, 2020 at 1615 × 1273 in Houses For Sale ← Previous Next → Like Loading...