
Lot 14 Block 14 at the Homestead Addition in Owasso is in the middle of being framed! Should finish up in a week or two. There is still plenty of time to make adjustments and pick out colors, fixtures and everything else. You do not want to miss out on this dream home. Call Mat at 918-688-6403 to set up an appointment now.
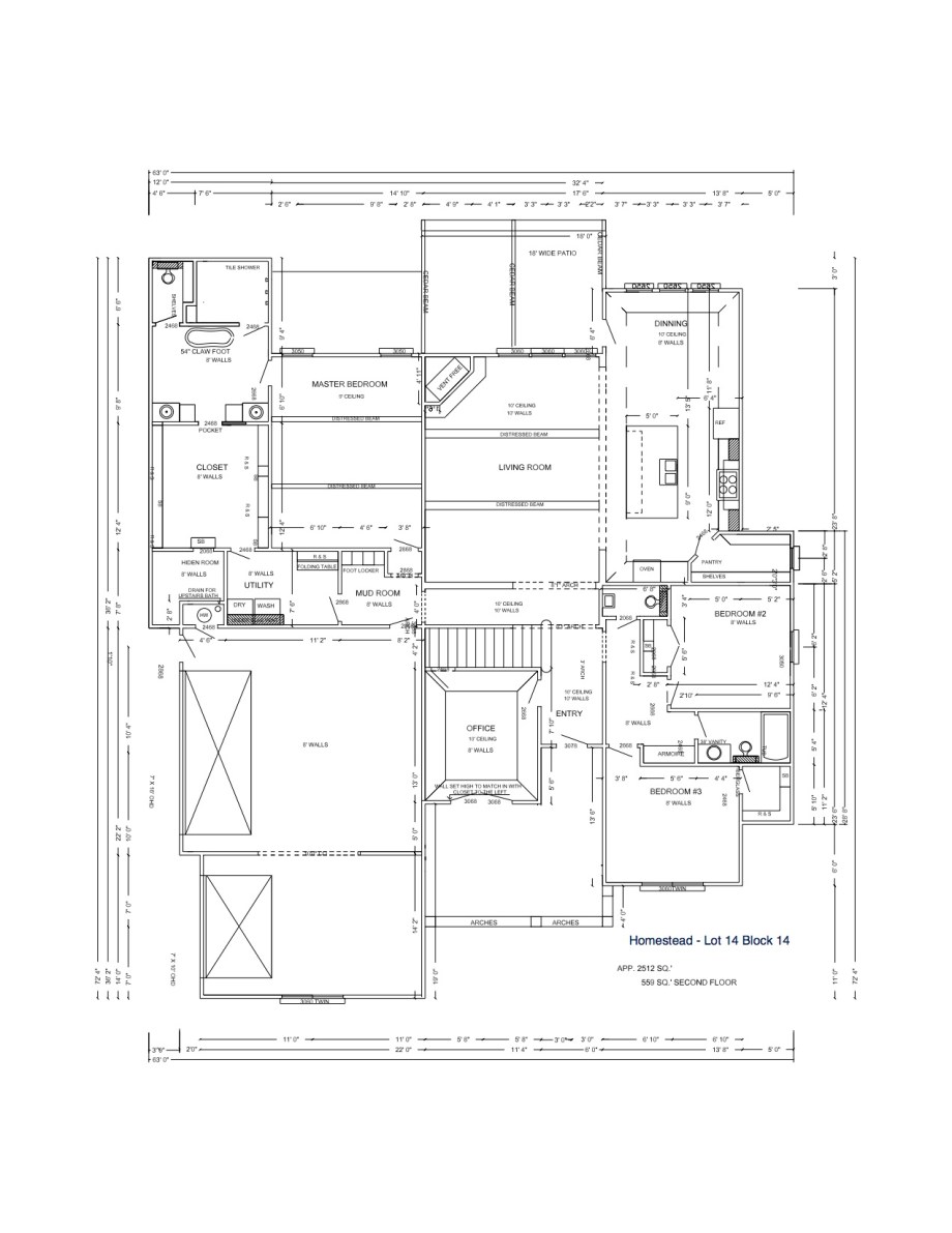
You an see the floor plans below.




